Your description of the pin assignments makes me suspect that
you misunderstand the circuit, and therefore might be drawing
false conclusions. Here are what I expect the 15 connections to
the left hand to be (note that these are _not_ pin numbers and that
these are not the correct Teensy2.0++ pins either and that I am
basing this on my recollection that a 74HC238 demux is used to
scan the switch matrix):
1 5v
2 gnd
3 status LED1 (Caps Lock)
4 status LED2 (Num Lock)
5 status LED3 (mouse mode)
6 status LED4 (scroll lock)
7 connection to A0 of 74238
8 connection to A1 of 74238
9 connection to A2 of 74238
10 connection to E3 of 74238
11 key sense line 1
12 key sense line 2
13 key sense line 3
14 key sense line 4
15 key sense line 5
The switch matrix has 26 switches for the left hand.
and so is likely to be some part of a 6x5 or a 7x5 matrix.
The demux works by taking 3 address inputs (A0-A2),
then the output enable line E3 is used to turn on the
selected output. This will drive up to 5 IRLEDs which will
set your sense line depending upon key state through the
matching phototransistor.
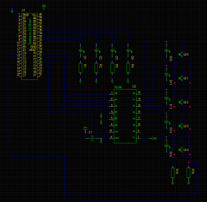
Here is a schematic of what I _expect_ to find for the left
hand switch matrix, for one sense line. Please note that
I have not traced out my datahand, but this just has to
be how it is done, or something _very_ close. Also note
that this is only 1 sense line - the remaining switches will
be scanned with copies of the D/Q 10-14 pairs, potentially
with switches evaluated with the Y5, Y6, and Y7 outputs,
with each copy of the column getting its own sense line.
This should get you onto the right track if you look at
this circuit, and see how this one sense line is used. Note
that only one output of the 74238 can be on at a time.

(edit: Also, this schematic is drawn for high-when-active. You're
describing that it is active-low, so the sense line and the
current limiting resistor could be rearranged a bit. This is
the way I've implemented the circuit so that no phototransistor
from a non-scanned row could influence the result)